ΑΠΟΚΑΤΑΣΤΑΣΗ ΚΑΙ ΕΠΑΝΑΧΡΗΣΗ του ΑΡΧΟΝΤΙΚΟΥ ΕΥΑΝΘΙΑΣ ΠΙΕΡΙΔΟΥ στη Λάρνακα
Το Αρχοντικό της Ευανθίας Πιερίδου, χρονολογείται περί τα μέσα του 19ου αιώνα και έχει κηρυχθεί αρχαίο μνημείο Πίνακα Β. Σε αυτό, έζησε μέχρι και τα τελευταία χρόνια της ζωής της η μεγάλη ευεργέτιδα της πόλης, Ευανθία Πιερίδου, και μετά την κληροδότησή του στην πόλη, στις αρχές του 20ου αιώνα, αξιοποιήθηκε εμπορικά, σύμφωνα πάντα με την διαθήκη της, προκειμένου τα έσοδά του να καταλήγουν στο Νοσοκομείο Λάρνακας.
Βρίσκεται σε κεντροβαρική θέση ως προς το παραλιακό μέτωπο των φοινικούδων και έχει απομείνει το μοναδικό, από τα αρχοντικά που δέσποζαν εκεί, που καταμαρτυρεί την ιστορική αξία και σημασία του χώρου, ο οποίος πάντα αποτελούσε το κέντρο της οικονομίας και της κοινωνικής ζωής της πόλης.
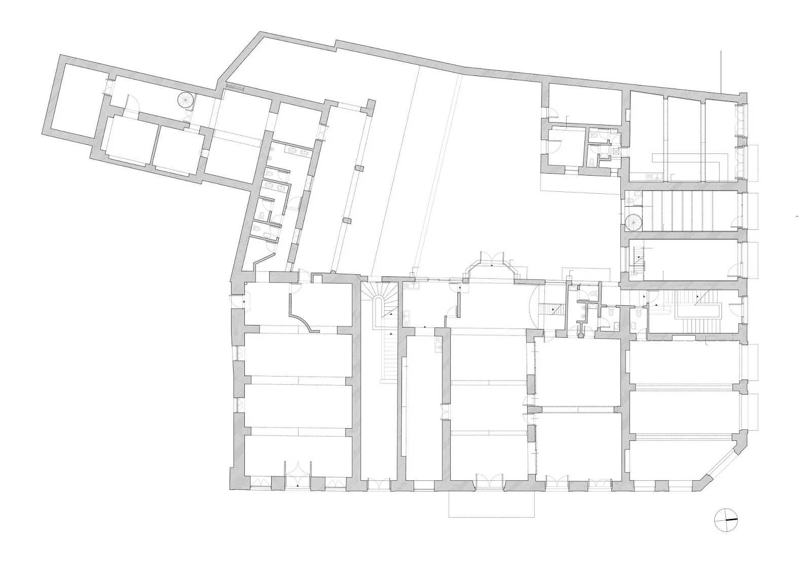
Το ‘54 έγινε μια σημαντική επέμβαση στο κτίριο, με σκοπό την περαιτέρω εμπορική αξιοποίησή του, δυστυχώς χωρίς σεβασμό στη δομή του κτιρίου, στην οργάνωσή του και στη σχέση του με το περιβάλλον...
Οι χώροι κατακερματίστηκαν και διαχωρίστηκαν σε επιμέρους υποστατικά, η τοξοστοιχία του ισογείου στην αυλή κτίστηκε, το πέρασμα της εσωτερικής αυλής στον πλαγιόδρομο έγινε κατάστημα, έγιναν προσθήκες στη βορειοανατολική βεράντα του ορόφου, και η γωνία του κτιρίου κόπηκε 45 μοίρες!
Περιλάμβανε την επαναφορά της κεντρικής εισόδου στο ισόγειο, κάτω από τον περίτεχνο εξώστη, και τη διάνοιξη του ηλιακού με την τοξοστοιχία της αυλής. Τη αποκατάσταση του περάσματος της εσωτερικής αυλής στον πλαγιόδρομο και την αξιοποίηση της ίδιας της αυλής και φυσικά την επαναφορά της γωνίας του κτιρίου.
Στον όροφο, την καθαίρεση όλων των προσθηκομετατροπών του ‘54 και την επαναφορά της βορειοανατολικής βεράντας. Νέες κατασκευές προτείναμε μόνο τον γυάλινο ανελκυστήρα του μουσείου και μια μεταλλική γέφυρα για την επίτευξη κυκλοτερούς κίνησης στους εκθεσιακούς χώρους. Διάφορα όμως προβλήματα με τους θέσμιους ενοικιαστές του κτιρίου δεν επέτρεψαν την υλοποίηση αυτής της μελέτης.
Με δεδομένα πλέον τα όρια των υφιστάμενων υποστατικών του ισογείου και του διαμερίσματος στον όροφο, μάς ζητήθηκε και προχωρήσαμε στην μελέτη της επέκτασης του ισόγειου εστιατορίου στο κεντρικό τμήμα του ορόφου, καθώς και με την διαμόρφωση γραφείων στη βόρεια πλευρά.
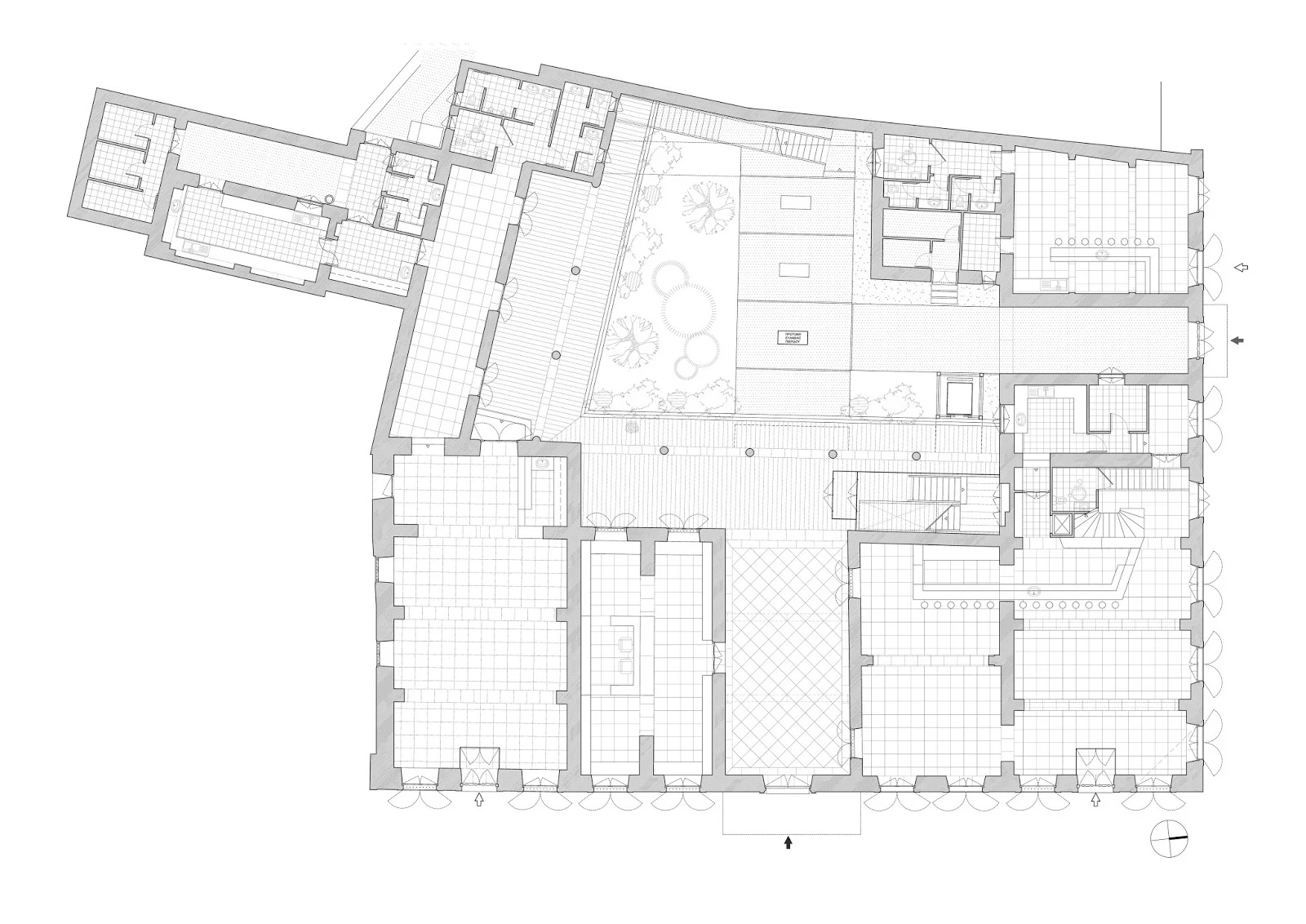
Τελικά μας δόθηκε εντολή και προχωρήσαμε σε υλοποίηση μόνο μερικής αποκατάσταση του κτιρίου, κυρίως για την στήριξή του, την καθαίρεση των τροποποιήσεων του ’54 και την αποκατάσταση των εξωτερικών όψεων.
Στην παρούσα φάση προχωρά και ελπίζουμε να υλοποιηθεί η μελέτη μας, για δημιουργία ξενοδοχείου στον όροφο, ενώ στο ισόγειο οι χώροι εστίασης διαμορφώθηκαν από τους ενοικιαστές με δικά τους σχέδια.
Το θετικό είναι, πως με τον ένα ή τον άλλο τρόπο, το μοναδικό αυτό αρχοντικό διασώθηκε και αναβίωσε, έστω και μερικώς, προσφέροντας στην πόλη ένα μικρό ίχνος της σπουδαίας ιστορίας, τόσο του ιδίου του κτιρίου όσο και του τόπου των φοινικούδων που το φιλοξενεί.












