ΚΥΠΡΙΑΚΟ ΠΡΑΚΤΟΡΕΙΟ ΕΙΔΗΣΕΩΝ (1ος Έπαινος σε Αρχιτεκτονικό Διαγωνισμό).
Το σκεπτικό:
Η συγκέντρωση, η διαλογή και η αναμετάδοση των ειδήσεων είναι μια έντονη, αδιάκοπη και συλλογική διαδικασία που εκτιμούμε ότι θα πρέπει να φιλοξενείται σε χώρους αντιστοίχως ζωντανούς, ρέοντες και διαφανείς και ταυτόχρονα οργανωμένους και ελεγχόμενους.
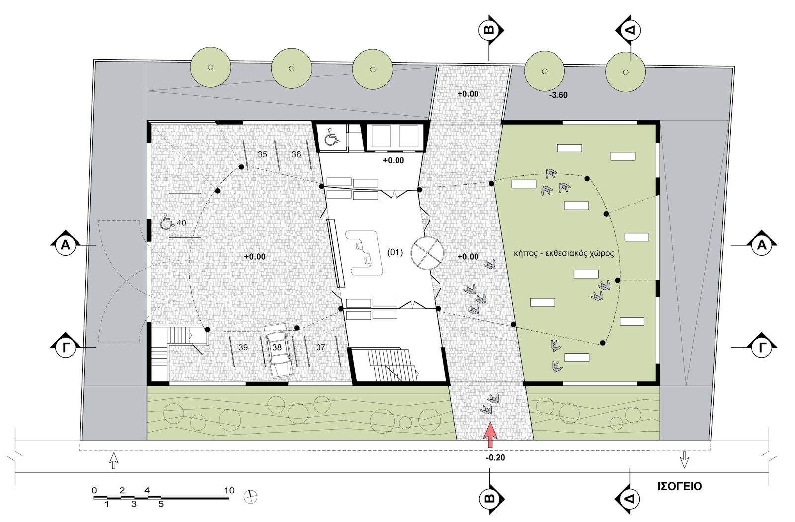
Ο πυρήνας της όλης δραστηριότητας του ΚΥΠΕ, το Newsroom, είναι προφανές ότι θα λειτουργεί κεντροβαρικά, θα είναι το σημείο αναφοράς, η «αγορά» της κοινότητας των χρηστών, εκεί όπου νοητά διαδραματίζονται τα όλα όσα συμβαίνουν στη χώρα αλλά και στον υπόλοιπο κόσμο.
Μέσα από μια τέτοια συλλογιστική, η διαμόρφωση του έργου ξεκινά από την μορφοποίηση του Newsroom έτσι ώστε να αποκτήσει χαρακτηριστικά που να του προσδίδουν τις έννοιες της ζωντάνιας, της ροηκότητας και της διαφάνειας και με στόχο να αποκτήσει χαρακτήρα που να καθορίζει την μοναδικότητα του κτιρίου.
Η ιδέα:
Ένα κανονικό στατικό σχήμα, ενεργοποιείται, αναμορφώνεται και μορφοποιείται αποκτώντας ιδιαίτερο σχήμα και την δική του προσωπική ταυτότητα, ως ο πυρήνας του οργανισμού - το Newsroom.
Περιβάλλεται από συμπαγή μάζα η οποία περιλαμβάνει τα υπόλοιπα γραφεία του ΚΥΠΕ. Το Newsroom προκειμένου να εμφανιστεί και να εκπέμψει προς τα έξω την ζωντάνια και τη δραστηριότητα του, διανοίγει την συμπαγή μάζα δημιουργώντας κενά.
Ένας πορώδης φλοιός αγκαλιάζει το όλο σώμα για να του προσδώσει συνοχή και ως επιδερμίδα το προφυλάσσει από τις εξωτερικές συνθήκες.
Cyprus News Agency (credit award at architectural competition)
The reasoning:
The collection, screening and subsequent re-transmission of the news is an intense, continuous and collective process which we consider, should be housed in spaces correspondingly live, flowing and transparent, but at the same time, organised and controlled.
It is apparent that the core of the activity of the Cyprus News Agency (C.N.A.), the Newsroom, will function in a centrally weighed manner, it will be the reference point, the "agora" of the community of users, the place where, everything that takes place in the country as well as the rest of the world, will come alive.
Based on this line of reasoning, the configuration of the project begins by shaping the Newsroom in such a way that it acquires characteristics that can give it liveliness, the feeling of a continuous flow and transparency. The target is to give it a status that defines the uniqueness of the building.
The idea:
A normal static shape is activated, reformed and formatted acquiring a distinctive shape, and its own unique character, as the core of the organisation - the Newsroom.
It is surrounded by compact mass, which includes the remaining offices of the C.N.A.. In order for the Newsroom to appear and project its liveliness and continuous activity, it opens up the compact mass, creating several voids.
A porous layer (network) embraces the whole building to give it consistency and, just like skin, protects it from external conditions.

