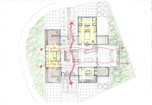
ΚΑΤΟΙΚΙΑ ΣΤΟ ΜΕΝΕΟΥ (Λάρνακα, Κύπρος - μελέτη) Λήψη συνδέσμου Facebook X Pinterest Ηλεκτρονικό ταχυδρομείο Άλλες εφαρμογές 11/30/2014 by ARMON Choros Architektonikis Κατοικία στο Μενεού ... ➡